產品型號說明
使用條件
● 周圍空氣溫度不高于40℃,不低于-5℃,24小時內平均溫度不得高于+35℃。
● 戶內使用,使用地點海拔高度≤2000m。
● 周圍空氣相對濕度在最高溫度+40℃時,不超過50%;在較低溫度時允許有較大的相對濕度,+20℃為90%,應考慮由于溫度變化可能偶然產生的凝露的影響。
● 裝置安置時與垂直面的傾斜度不超過5°。
● 裝置應安裝在無劇烈震動和沖擊,以及不足以使電器元件受到不應有腐蝕的場所。
● 用戶有特殊要求時,可以與制造廠協商解決。
電氣性能
基本電氣參數
● 額定絕緣電壓:交流500V
● 額定工作電壓主電路:交流220V
● 額定頻率:50Hz
● 額定電流:單相電度表最大允許電流40A
表前隔離開關45、63、100A
表后斷路器80、63、40、32、25、20A
額定短時耐受電流4.5,6kA
主電路方案
根據北京市規劃建設委員會《住宅電氣設計通用標準》規定,住宅每戶設計容量≥6KW,每戶戶用電度表的選用不應小于5(20)A的四倍寬幅表。為了便于小區式建筑的集中管理,電表箱設計為雙門雙鎖。大門和鎖由管理人員管理,控制表前隔離開關及計量箱內電氣元件,每個電度表設小門,由用戶自行上鎖管理,可以觀察電度表運行及插卡操作,還可以操作表后開關,對單元戶內停電。
根據北京市供電局業擴處推薦方案,XM配電箱選用DD862電度表。正泰或ABB公司的隔離開關和與磁卡表聯動的空氣開關。
根據北京市建筑特點,計量箱設計為1-4回路共4個方案,適用于不同的單元戶型。
安裝與使用
● 計量箱到達收貨地點后,首先應檢查包裝是否完整無損,技術文件和隨機輔料是否齊全,發現問題及時與制造廠聯系解決;
● 計量箱安裝應按提供的尺寸固定于墻面上;
● 計量箱使用前應手動操作開關手柄,檢查是否靈活,無卡滯現象。計量箱內的PE銅排為主接地點,應可靠連接接地保護線后,方可通電使用。
結構特點
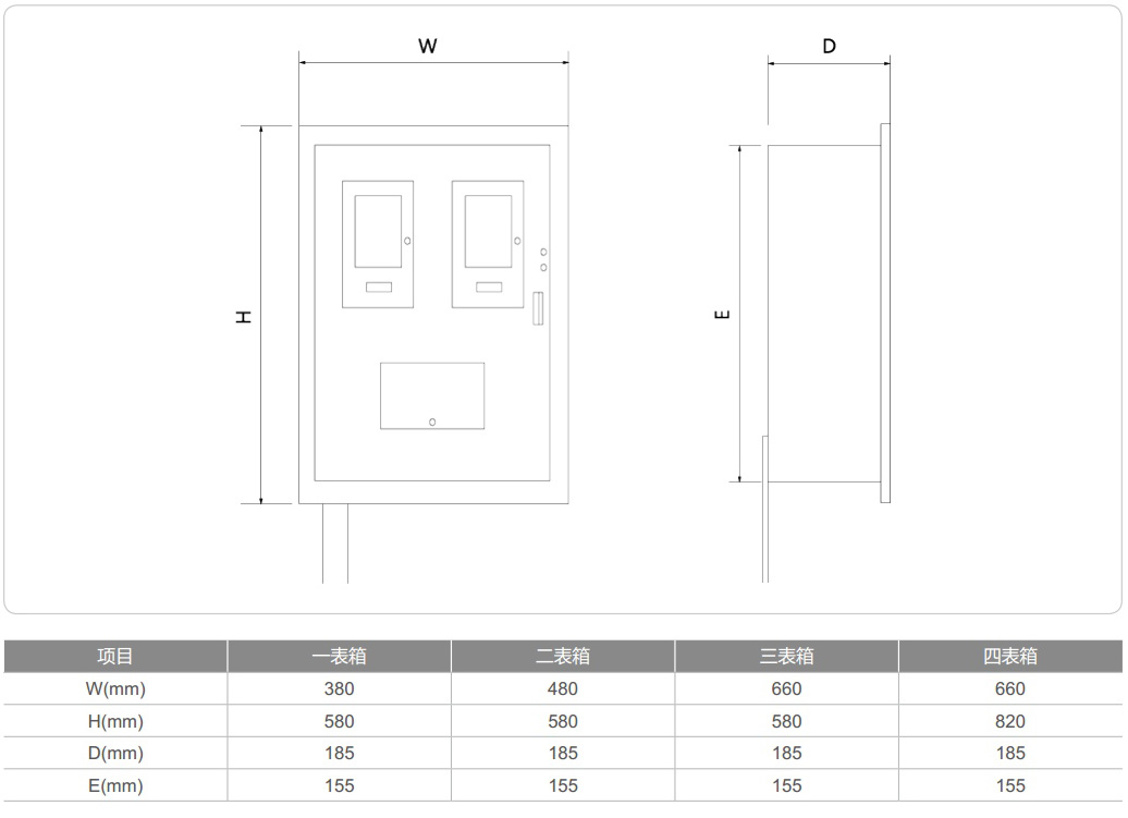
計量箱采用薄鋼板焊接結構,暗(明)裝懸掛式安裝。基本的尺寸規格見 表1:

計量箱為方便管理,大門設有鉛封柱,小門設有觀察窗。 計量箱表面涂層采用噴塑工藝,可根據用戶需要選色。
訂貨須知
訂貨方應提供:
1.計量箱主回路數。
2.外形和安裝尺寸要求,
3.主要元器件型號,涂層材料和顏色。
4.交貨時間和地點,及交貨方式。
產品附件
● 裝箱清單、電氣原理圖、出廠合格證、出廠試驗報告
● 裝置使用說明書和主元件的使用說明書及合同規定的備品備件
外形尺寸和安裝尺寸